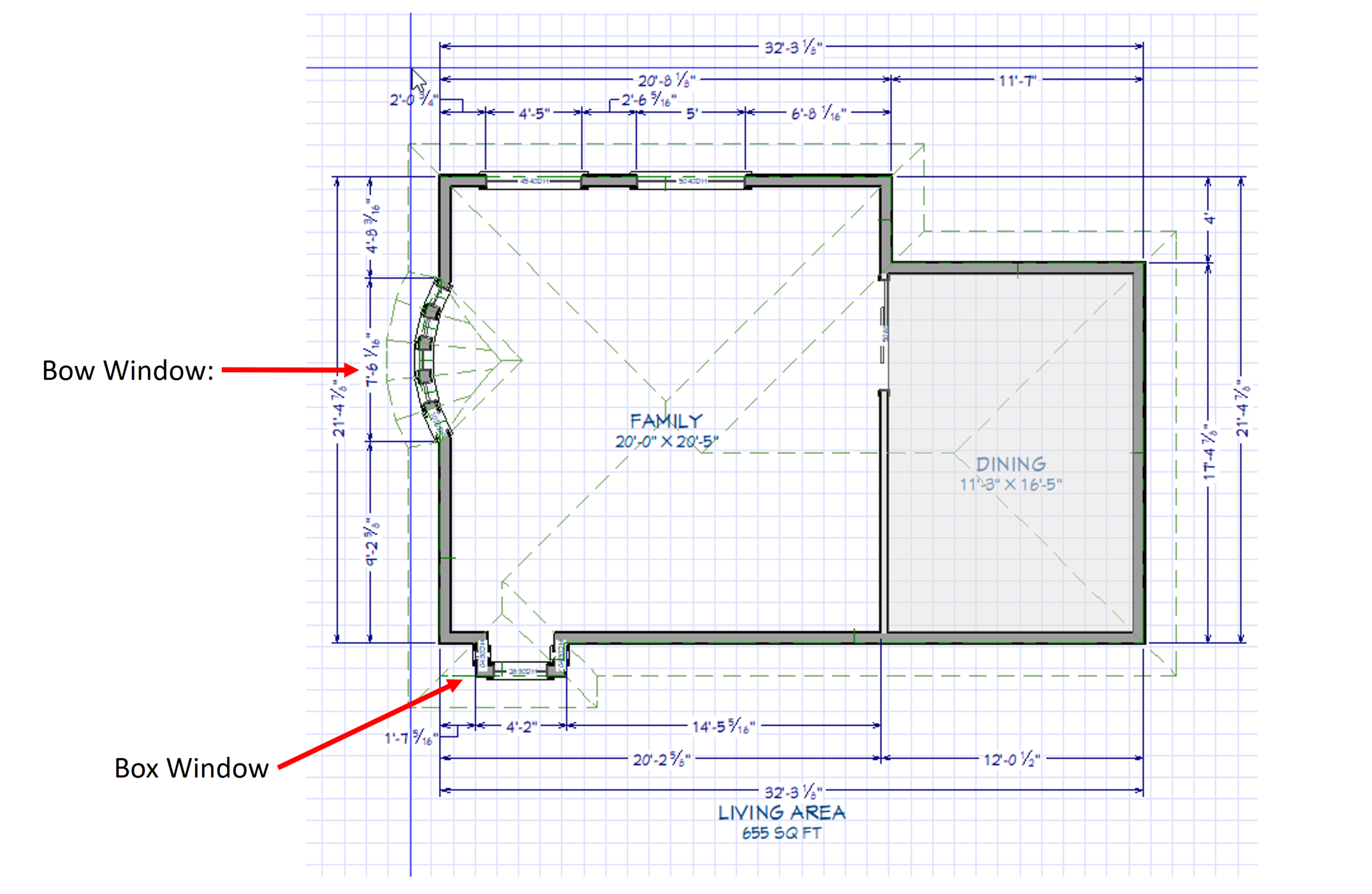
Do Now Chief Architect

  1. Create the exact diagram below in a new .plan file.
  2. add 3 furniture items t the Family room
  3. add 2 furniture items to the Dining room
  4. Use the dimensions and room names